|
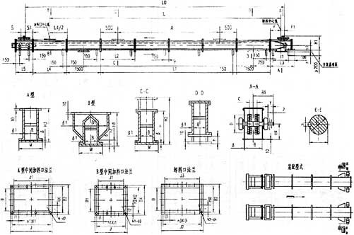
MS埋刮板输送机 埋刮板输送机是输送粉尘状、小颗粒及小块状等物料的连续运输设备,可以水平、倾斜输送,输送物料时,刮板链条全埋在物料之中。本机具有结构简单,使用可靠,造价低廉,输送距
|
埋刮板输送机是输送粉尘状、小颗粒及小块状等物料的连续运输设备,可以水平、倾斜输送,输送物料时,刮板链条全埋在物料之中。本机具有结构简单,使用可靠,造价低廉,输送距离长,并能输送灼热物料等优点,被广泛应用于建材、化工、冶金、煤炭、矿山、机械等部门。
埋刮板输送机技术参数表:
|
埋刮板输送机型号 |
MGS20 |
MGS25 |
MGS32 |
MGS40 |
|
|
物料容量(t/m3) |
0.4-0.8 |
0.4-0.8 |
0.4-0.8 |
0.4-0.8 |
|
|
输送能力(m3/h) |
50 |
60 |
80 |
120 |
|
|
最大输送长度(m) |
40 |
40 |
40 |
60 |
|
|
安全倾角 |
0-15度 |
0-15度 |
0-15度 |
0-15度 |
|
|
刮板链条 |
刮板间距(mm) |
200 |
200 |
200 |
200 |
|
链条间距(mm) |
100 |
100 |
100 |
100 |
|
|
滚子直径(mm) |
28 |
28 |
28 |
28 |
|
|
链条形式 |
TG100 |
TG100 |
TG100 |
TG100 |
|
|
每米重量(KG) |
7.8 |
12.2 |
35 |
43.2 |
|
结构形式
